Navigation überspringen
Home
Projekte
Ausbildung
Pflege / Reha / Wohnen
Industrie- und Gewerbebau
Innenräume
Besondere Projekte
Büro
Neues
Kontakt
Alle
Neubau
Erweiterung
Sanierung
Umbau
Planung
Dreifeld-Sporthalle an der Albert-Schweitzer-Schule
Neubau
Albert-Schweitzer-Schule in Lübeck
Neubau
Grundschule Westercelle
Neubau
Berufsbildungszentrum BBZ
Neubau
Lessinggymnasium
Neubau
Schule Mendelssohnstraße
Neubau
Sanierung Bildungs- und Tagungszentrums BiTZ der AOK
Neubau
Therapiezentrum Brunswiek
Neubau
Mathildenschule
Neubau
Schule Gaußstraße, Hamburg
Umbau
BBZ Magdeburg: Werkhallen
Neubau
Grundschule Ochsenwerder, Hamburg
Sanierung
SW Seed, Hadmersleben
Neubau
BfW Sachsen‑Anhalt: Ausbildungsgebäude
Neubau
BBZ Magdeburg: Mensa und Pausenhalle
Neubau
BfW Sachsen-Anhalt: Mensa und Innenräume
Sanierung
BfW Oberhausen: Kommunikationszone
Sanierung
Jägermeister Werk Kamenz-Bernbruch
Neubau
BfW Oberhausen: Internat
Sanierung
Institut für med.-berufl. Reha, Wuppertal-Ronsdorf
Neubau
BfW Oberhausen: Hochhausfassade
Sanierung
BfW Sachsen‑Anhalt: Verwaltung + Soziales
Neubau
BfW Sachsen-Anhalt: Freizeit-/ Gesundheitseinrichtungen
Neubau
BfW Hamburg: Einfahrt, Vorplatz, Pforte
Neubau
Schule Ochsenwerder 2.BA
Neubau
Brüder-Grimm-Schule, HH
Neubau
Leisewitzhaus in Braunschweig
Sanierung, Umbau
Einfamilienhaus bei Hannover
Neubau
Städtisches Museum, Braunschweig
Umbau, Sanierung
BBZ Magdeburg: Internat
Neubau
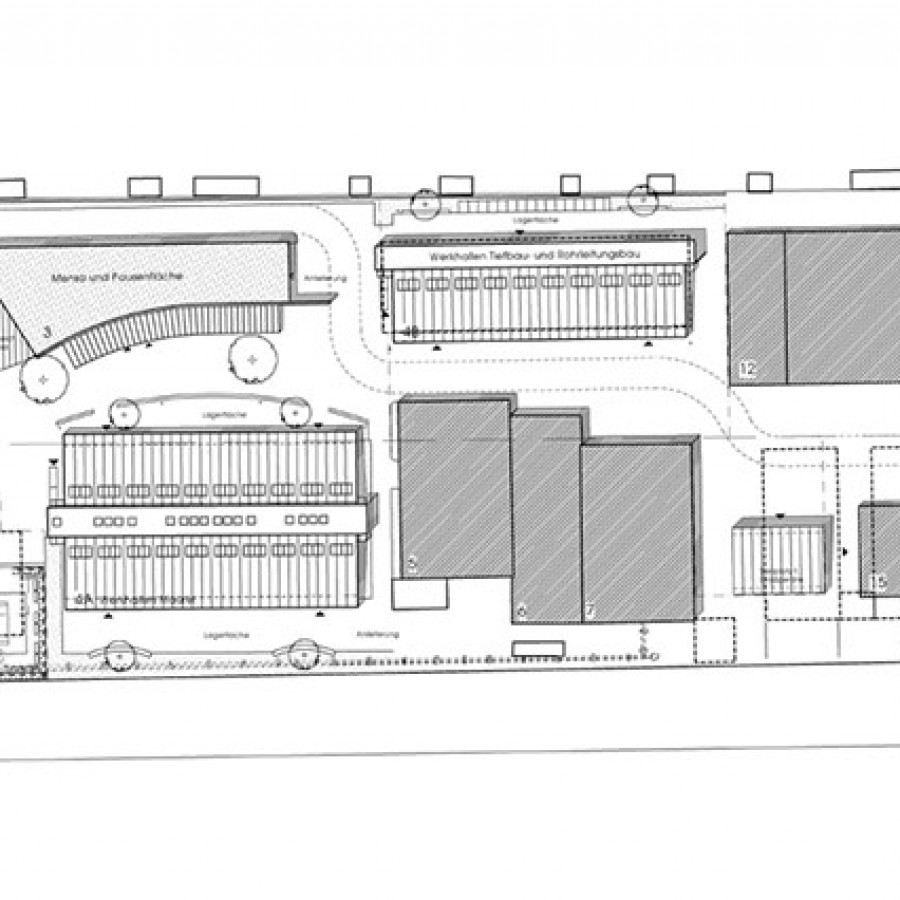
TZ Breisach: Bebauungskonzept und Infrastruktur
Neubau
TZ Breisach: Neubau einer Lagerhalle
Neubau
TZ Breisach: Kfz-Werkstätten
Umbau
TZ Breisach: Neubau der Lkw-Werkstatt
Neubau
TZ Breisach: Klassenräume Gewerbeschule
Neubau
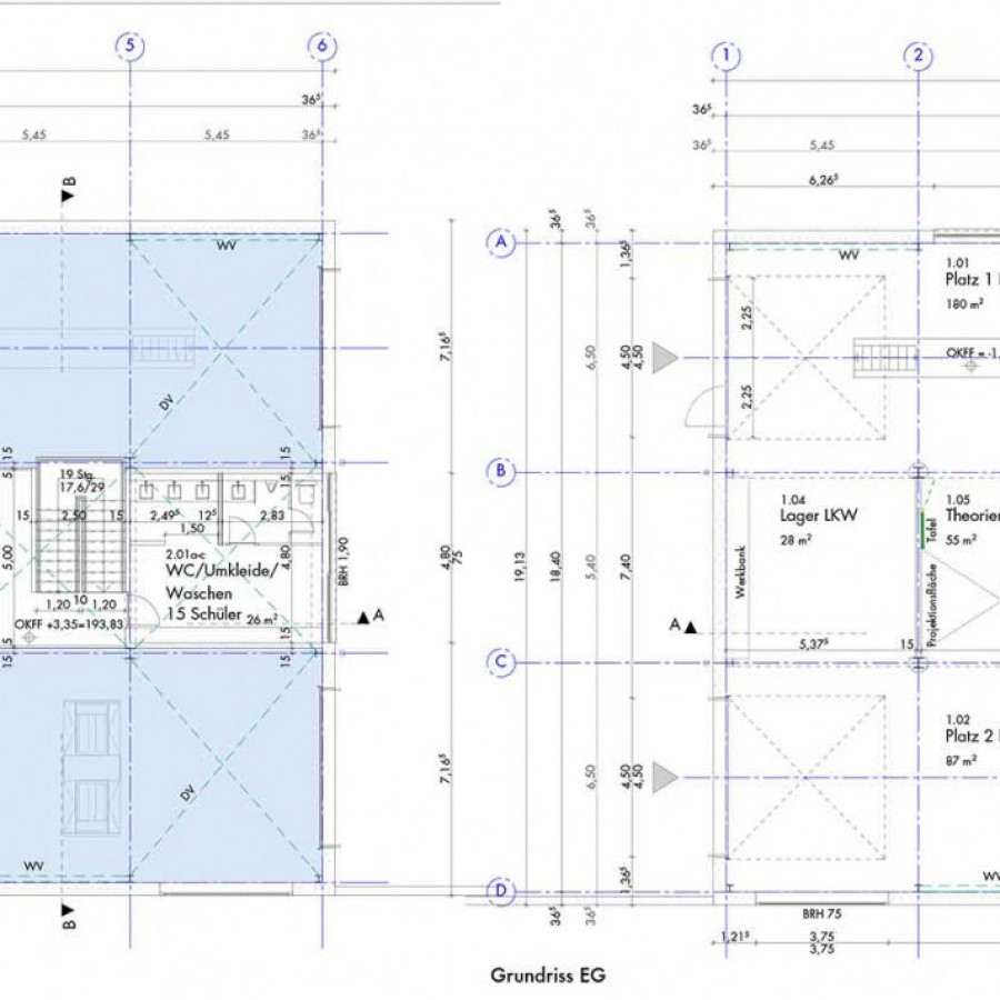
TZ Breisach: Theoriegebäude (74)
Neubau
Erweiterung Schule Stöckheim
Planung
Eisarena Planten un Blomen
Planung, Sanierung, Neubau
Fotostudio Hamburg
Umbau
BfW Oberhausen: Interimsinternat
Neubau
Altenpflegeheim / Begegnungsstätte, Braunschweig
Planung, Umbau, Erweiterung
BBZ Magdeburg: Malerhalle
Neubau
BfW Oberhausen: Assessment Center
Neubau, Erweiterung
BfW Sachsen‑Anhalt: Bibliotheksanbau
Erweiterung
BfW Oberhausen: Ausbildungsgebäude
Sanierung
Ausbildungszentrum Bau Holleben
Neubau
BfW Sachsen-Anhalt: Wohnheime mit Freizeiteinrichtungen
Sanierung, Umbau
Wohnhaus Steintorwall, Braunschweig
Sanierung, Umbau
BfW Oberhausen: Verwaltung
Sanierung
BfW Sachsen-Anhalt: ehem. Schule der Völkerfreundschaft
Sanierung, Umbau
Sparkasse Weißeritzkreis in Freital
Sanierung, Neubau
Milchproduktewerk Sachsenmilch
Neubau
BfW Oberhausen: Mensa
Sanierung
BfW Oberhausen: Konferenzräume
Sanierung
Erweiterung Schule Bültenweg
Planung
Vinothek "Weinviertel", Hamburg
Umbau
Quartier Hallesches Tor, Köthen
Neubau, Planung
Wiederaufbau Dosenwerk Haßloch
Sanierung, Planung
Mensa Sportgymnasium Halle/Saale
Neubau
Stationsbäder Gustav Brandt´sche Stiftung
Umbau, Sanierung
BfW Goslar
Umbau
BfW Vallendar: Multifunktionales Lernzentrum
Neubau
Ball Packaging Europe, Belgrad
Neubau
Internat ABZ Holleben
Neubau
Sanierung Brocken-Museum
Sanierung
Ganztagsschule Rothenburg, Braunschweig
Erweiterung
Ball Packaging Europe, Radomsko
Neubau
Basislager Hamburg
Planung
Augenarztpraxis für Ambulantes Operieren
Umbau
Villa Pinares
Neubau
Schulbaukasten
Planung
Grund- und Hauptschule Speldorf
Sanierung
Berufsförderungswerk Sachsen-Anhalt
Umbau, Erweiterung
Zuckerrüben-Saatzuchtstation
Neubau
Betreutes Wohnen, Braunschweig
Sanierung, Umbau
Bau-Bildungs-Zentrum Magdeburg
Planung
Café Lykke, Elmshorn
Umbau
Ball Packaging Europe, Werk Hermsdorf
Neubau, Erweiterung
top
© plp Architekten und Generalplaner |
Impressum
Datenschutz
Navigation überspringen
Home
Projekte
Ausbildung
Pflege / Reha / Wohnen
Industrie- und Gewerbebau
Innenräume
Besondere Projekte
Büro
Neues
Kontakt