Mensa am Sportgymnasium Halle / Saale

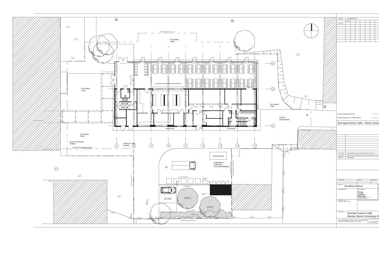
Da die Bausubstanz des DDR-Streifenbaus desolat war, das Gebäude insgesamt zu groß und seine architektonische und städtebauliche Qualität gering, haben wir Abbruch und Neubau empfohlen, auch weil die Kosten für den Neubau nicht wesentlich höher als die der Sanierung waren. In unserem Entwurf orientiert sich der Speiseraum nun nach Norden, zum „Campus“, auf dem leider keine Sitzplätze im Freien gestattet wurden. Im Speiseraum ist Platz für 160 Schüler. Küche und Nebenräume liegen ebenerdig der Straße und der Anlieferung zugewandt. Die Küche ist ausgelegt für 600 Mittagessen, dazu kommen 1. und 2. Frühstück, Vesper und Abendessen.

Ein Verbindungsgang zwischen Mensa und Internat ermöglicht den witterungsgeschützten Übergang

Aufgabe:

Überlegungen zur Sanierung oder zu Abriss und Neubau der Mensa gehörten zum Auftrag neben der Sanierung der beiden zum Gymnasium gehörigen Internate

Standort:

Halle

Auftraggeber:

Land Sachsen-Anhalt, Staatshochbauamt Halle | Öffentlicher AG

 

Planungs- und Bauzeit:

2001 – 2003

Bruttogrundfläche:

ca. 720 m2

Bruttorauminhalt:

ca. 4.000 m3

Leistungen:

Leistungsphasen 1-7

 

Fotos: © plp

zurück

© plp Architekten und Generalplaner   |   Impressum   Datenschutz