
TZ Breisach, Theoriegebäude
Innerhalb des neuen Gesamtkonzepts für das Technologiezentrum wurde ein Gebäude erforderlich, in dem alle zusätzlichen Räume untergebracht wurden, die auf dem Gelände notwendig sind:
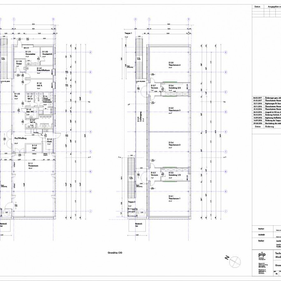
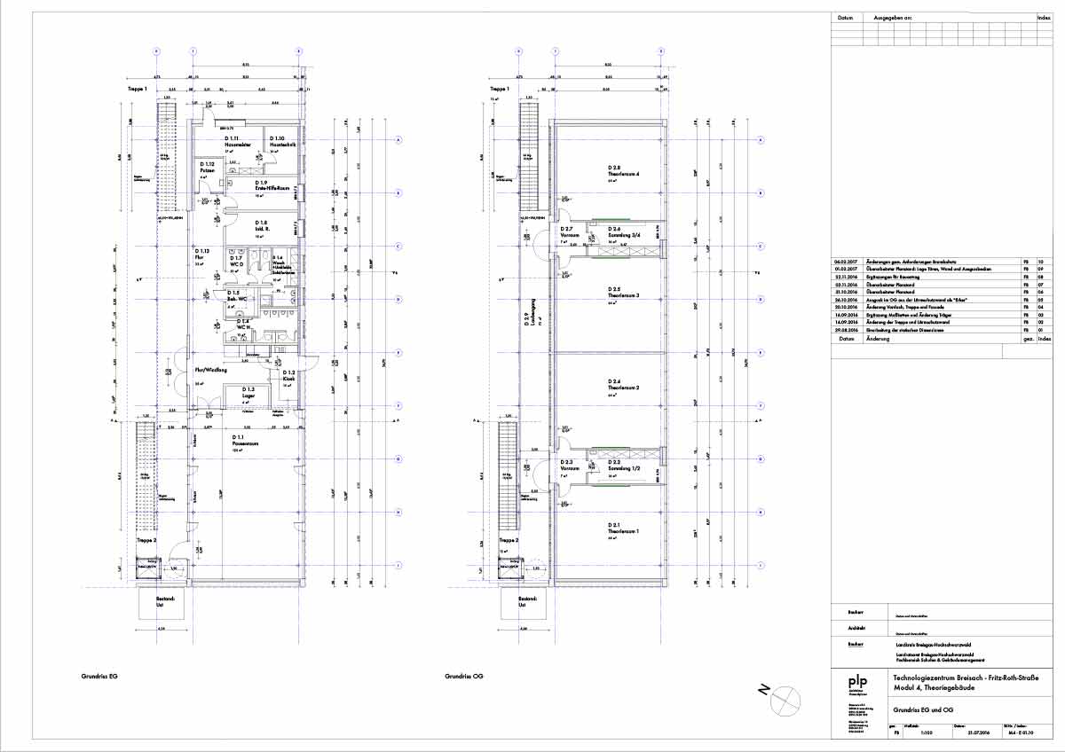
- Im EG als Anlaufstelle das Hausmeisterbüro, ein Sanitätsraum, zentrale Umkleiden und WCs für die wenigen Mädchen der Schule, ein Pausenraum mit Kiosk und Getränkeautomaten, WCs
- Im OG vier Theorieräume mit dazwischen geschalteten Sammlungsräumen.
Die Erschließung des Gebäudes erfolgt über offene Treppen und einen offenen Laubengang. Damit werden die Theorieräume beidseitig natürlich belichtet und belüftet.
Wichtig war uns die Lage des Gebäudes /des Pausenraumes zur Fritz-Roth-Straße hin, so dass das Leben in der Schule für die Nachbarn sichtbar wird. Auch hier sind die Fassaden Teil des Gestaltungskonzeptes für alle Neubauten inklusive der Lärmschutzwände: Gasbetondielen, die eine horizontale Rasterung vorgeben.
Aufgabe: |
Neubau von vier Unterrichtsräumen, Pausenfläche, Hausmeisterbüro und Sonderrräumen |
Standort: |
Breisach |
Auftraggeber: |
Landkreis Breisgau-Hochschwarzwald | Öffentlicher AG |
Planungs- und Bauzeit: |
2017-2019 |
Bruttogrundfläche: |
ca. 800 m2 |
Bruttorauminhalt: |
ca. 3.480 m3 |
Leistungen |
Leistungsphasen 1-9 |