Schule Mendelssohnstrasse

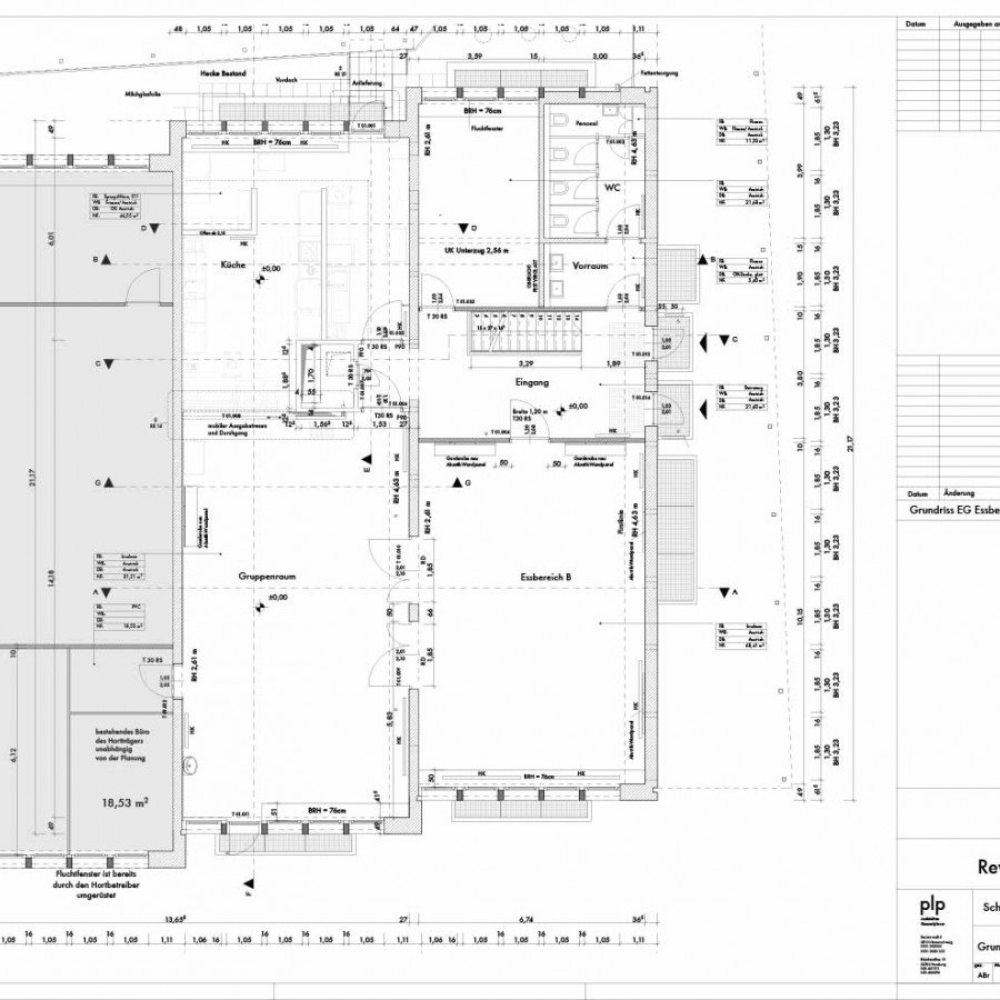
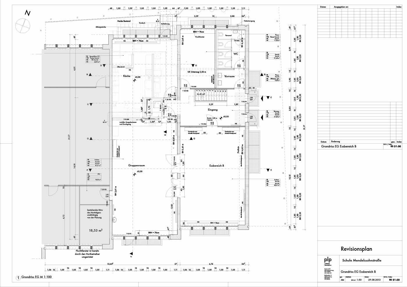
In ein vorhandenes Klassengebäude der Schule aus den 60er Jahren sollten Küche und Speiseraum für die Ganztagsbetreuung eingebaut werden. Die Schule steht unter Denkmalschutz.

Die Maßnahme erfolgte im Rahmen des GBS-Programms für Hamburger Grundschulen, die den Beginn der Ganztagsbetreuung zum Schuljahr 2013/14 vorsah. Im GBS-Programm waren alle Flächengrößen festgelegt und mussten so gut wie möglich in den Bestand integriert werden. Eigentlich nur eine kleine Umbaumaßnahme, zeigte sich die Aufgabe als relativ komplex in der Betreuung - unsere Arbeit umfasste die Aus- und Einzugsplanung von Schule und sonstigen Nutzern, die eigentliche Planung bis zur Abstimmung mit dem Denkmalschutz und die Absprachen mit Schulleitung, Hausmeister und Caterer. Die Essensausgabe sollte sowohl mit Tresen als auch mit fahrbaren Tresen-Elementen zur Bedienung an den Esstischen funktionieren können. Deshalb wird die Küche mit türhohen Schiebe-Elementen verschlossen.

Aufgabe:

Einbau von Speiseraum und Küche für die Ganztagsbetreuung

Standort:

Hamburg

Auftraggeber:

Schulbau Hamburg | Öffentlicher AG

 

Planungs- und Bauzeit

2012 - 2013

Bruttogrundfläche:

ca. 410 m2

Bruttorauminhalt:

ca. 1.310 m3

Leistungen:

Leistungsphasen 1-8

 

Fotos: © ...

zurück

© plp Architekten und Generalplaner   |   Impressum   Datenschutz