
Bau-Bildungs-Zentrum Magdeburg
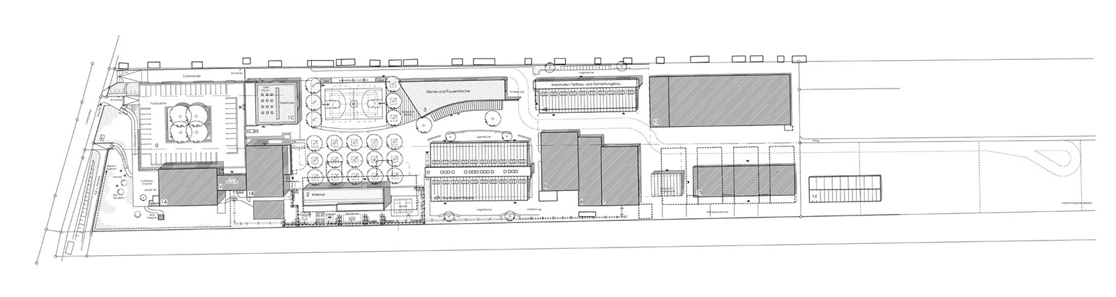
Die Grundstücksform bestimmt die Neuordnung auf dem. Ziel des Gesamtkonzeptes ist es, auf dem schmalen, lang gestreckten Grundstück eine Abfolge von Nutzungszonen zu schaffen. Erste Nutzungszone ist der Eingangsbereich mit Stellplätzen in zwei Ebenen, der von den Plattenbauten für Unterricht und Verwaltung und der neuen Malerhalle baulich gefasst wird. Zweite Nutzungszone ist der Freizeitbereich, der baulich von Internat und Mensa definiert wird und durch ein Spielfeld, eine Skaterbahn, Grill und Aufenthaltsflächen abgerundet wird. Dritte Nutzungszone ist der Ausbildungsbereich. Hier liegen entlang der Schulstraße Werkhallen und Freiarbeitsflächen.
Die gesamte Umstrukturierung erfolgte bei laufendem Betrieb.
Aufgabe: |
Städtebauliches Konzept für das Ausbildungszentrum für Bauberufe |
Standort: |
Magdeburg, Lorenzweg |
Auftraggeber: |
Verein zur Berufsförderung der Bauindustrie in Sachsen-Anhalt e.V. | Öffentlicher AG |
Planungs- und Bauzeit: |
1996 – 2005 |
Bruttogrundfläche: |
11.100 m2 |
Bruttorauminhalt: |
39.000 m3 |
Leistungen: |
Leistungsphasen 1-8, Generalplanung |
Fotos: © Heiner Leiska