Therapiezentrum Brunswiek

Das Therapiezentrum Brunswiek ist eine Kurklinik der 70er Jahre, in der heute Menschen nach orthopädischen Eingriffen rehabilitiert werden.

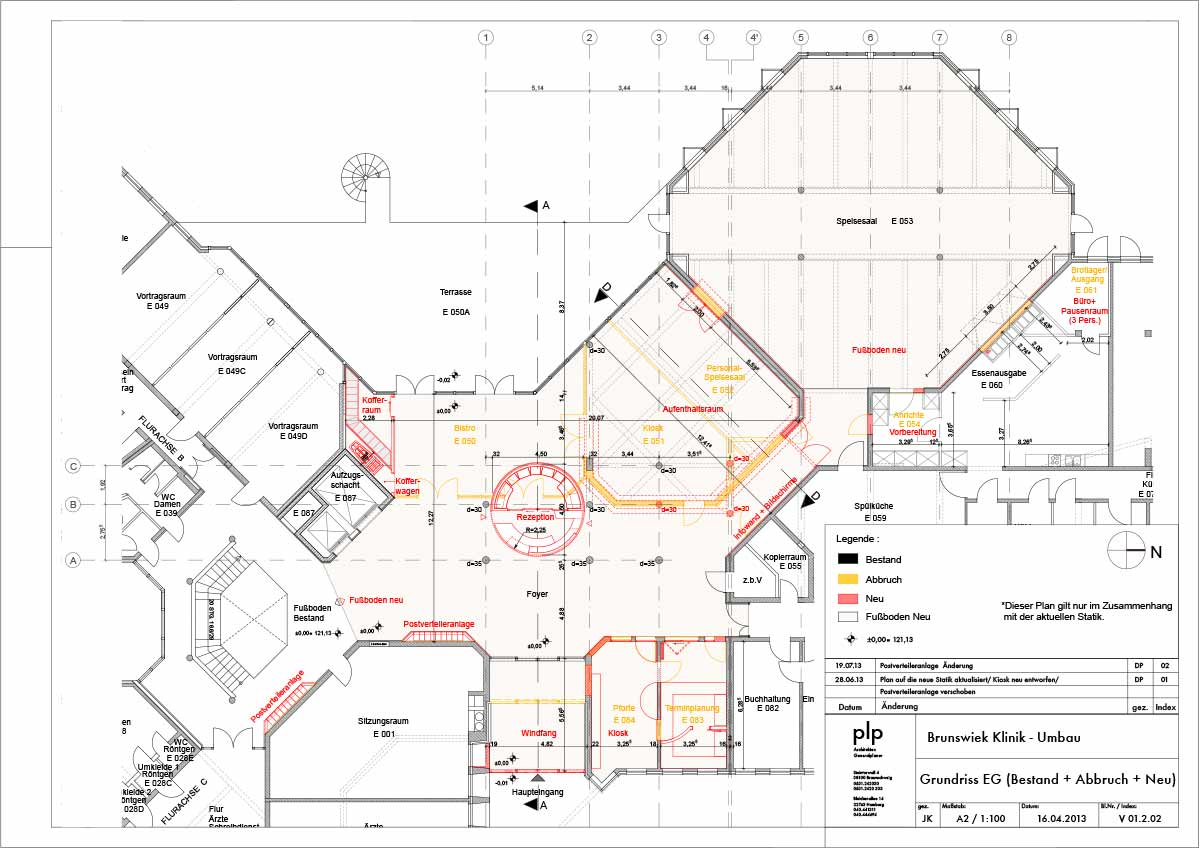
Das Haus verfügt zwar über alle erforderlichen Reha-Einrichtungen, jedoch nicht über ausreichend Aufenthaltsflächen für seine Patienten außerhalb der Behandlungen. Deshalb sollten Foyer und Speiseraum umgeplant und neu gestaltet werden. Die Sitzplatzzahl sollte von 20 auf 60 erhöht werden, die Rezeption sollte Hotelcharakter bekommen.

Die Aufgabe, eigentlich nur das Foyer schön zu machen, weitete sich aus mit der Erkenntnis, dass dem Bauordnungsamt keine Baugenehmigung aus den 70ern vorlag. Dies sollte nun im Rahmen des Bauantrages für das Foyer mit "geheilt" werden. Zudem forderte das BOA ein Brandschutzkonzept für das gesamte Haus, bei dem die Umgestaltung von Foyer und Speiseraum nur der erste Step sein sollte. Dazu kamen bauliche Probleme.

Der Abbruch von tragenden Wänden im Foyer musste bis ins 2.UG abgefangen werden.

Der konstruktive Brandschutz des Betonbaus der 70er reichte nicht mehr aus und musste ertüchtigt werden. Wir stießen auf erstaunliche Konstruktionen und Schwachstellen. Sinnvolle Schnittstellen bei der Erneuerung der Leitungen Elt, Wasser und Heizung zu finden, weitete die Baumaßnahme zusätzlich aus und führte zu großflächigen Sanierungs- und Brandschutzmaßnahmen in den Untergeschossen, im Erdgeschoss und durch alle Obergeschosse. Speziell die Brandschutzanforderungen vergrößerte permanent die zu bearbeitenden Flächen. Erst ein gemeinsames Gespräch mit Bauherrn und Amtsleitung konnte die Baustellenausdehnung begrenzen.

Die Bauzeit verlängerte sich dadurch deutlich. Auch das Budget musste mehrfach angepasst werden.

Alle Maßnahmen wurden im laufenden Betrieb durchgeführt mit Interimsmaßnahmen für den Haupteingang, den Speisebereich und den Kiosk. Das Schwimmbad im UG musste ein halbes Jahr geschlossen werden.

Wir vergrößerten zunächst die Fläche für das Foyer durch das Verlagern von Nutzungen und den Abbruch von Wänden. Der so entstandene Raum wurde eine unregelmäßig begrenzte polygonale Fläche mit relativ viel Fensterfläche und Ausblicken ins Grüne. Ganz wichtig war deshalb ein geringer Helligkeitskontrast zwischen innen und außen. Deshalb gibt es einheitlich helle Wände und Fußboden. Die polygonale Fläche wird strukturiert durch das Motiv der kreisförmigen „Inseln" mit darüber liegenden schallschluckenden „Wolken". Auf Teppichinseln im Steinfußboden sind unterschiedliche Sitzgruppen angeordnet: Sitzen allein oder in Grüppchen zum Lesen, Spielen, Fernsehen, Kaffeetrinken. Farben sind Grün mit Akzenten in Pink und Gelb.

In allen Bereichen ist die Barrierefreiheit ein zentrales Thema.

Der Speisesaal erhält statt Fliesen einen Holzfußboden, neue Paneele im Zugangsbereich, einen neuen Anstrich und neue Möbel. Der Raum der Essensausgabe wird im Publikumsbereich der Foyer-Gestaltung angepasst.

Aufgabe:

Innenraumkonzept für Foyer und Speisesaal / Essensausgabe

Standort:

Bad Pyrmont

Auftraggeber:

DRV Braunschweig Hannover | Öffentlicher AG

 

Planungs- und Bauzeit

2014 - 2019

Bruttogrundfläche:

ca. 250 m2

Leistungen:

Leistungsphasen 1-9

 

Fotos: © ...

zurück

© plp Architekten und Generalplaner   |   Impressum   Datenschutz