
Internat am BBZ Magdeburg
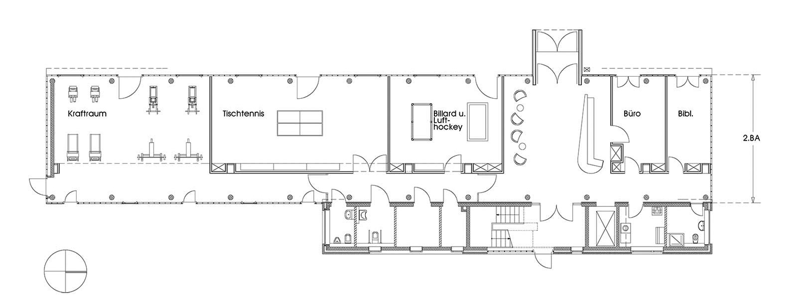
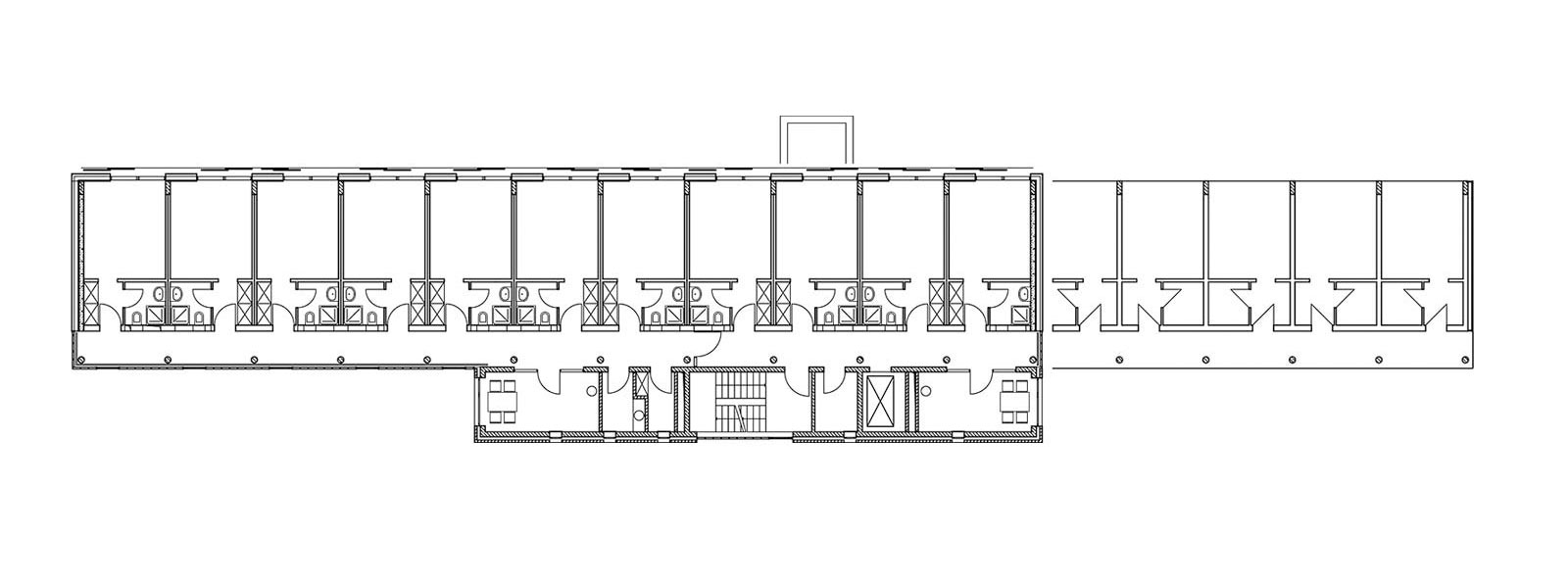
Beschluss zum Abbruch des vorhandenen Plattenbaus und Neubau des Internates, wegen der geringen Kostenersparnis für Rückbau und Sanierung gegenüber dem Neubau. Der Neubau hat zunächst 60 statt der bewilligten 90 Betten. Alle Bettenräume sind von der nahen Stadtautobahn abgewandt. Erschließung, Haustechnik und Nebenräume bilden einen Baukörper, der mit lichtgrauem Betonstein verkleidet ist. Das „Bettenhaus“ als Skelettbau ist daran angegliedert, mit Flachdecken und leichtem Ausbau, der sich veränderten Nutzungen problemlos anpassen lässt. Die Fassaden sind mit farbigen Vollkunststoffplatten verkleidet, Schiebeläden aus demselben Material dienen als Sonnenschutz. Flurseite und Erdgeschoss des „Bettenhauses“ sind mit Industrieglas verglast, einem preiswerten transluzenten Material.
Aufgabe: |
Abbruch des vorhandenen Plattenbaus, Neubau eines Internates mit 60 Plätzen |
Standort: |
Magdeburg, Lorenzweg |
Auftraggeber: |
Verein zur Berufsförderung der Bauindustrie in Sachsen-Anhalt e.V. | Öffentlicher AG |
Planungs- und Bauzeit: |
2002 - 2004 |
Bruttogrundfläche: |
ca. 1.700 m2 |
Bruttorauminhalt: |
ca. 5.700 m3 |
Leistungen: |
Leistungsphasen 1-8, Generalplanung |
Fotos: © Michael Wortmann