Sparkasse Weißeritzkreis in Freital
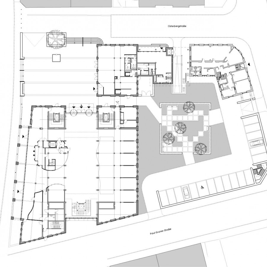
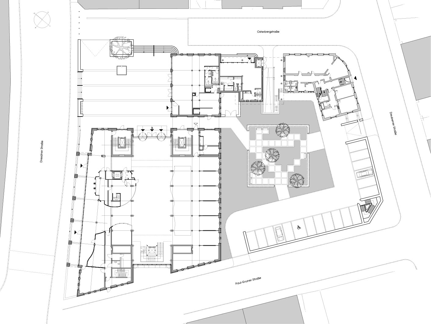
Unser Entwurfsziel war das Eingehen auf die Öffentlichkeit und den Ortsbezug der Sparkasse, das wir durch sensibles Einfügen eines modernen Neubaus in die Umgebung erreichten. Höhen und Materialien der Nachbarbebauung werden im Neubau aufgenommen. Wir führten die Blockrandbebauung mit zwei zweibündigen Baukörpern weiter, die über eine Glashalle miteinander verbunden sind. Damit schufen wir einen Vorplatz, der dem Haupteingang zur Sparkasse Großzügigkeit und Weite verleiht und sich in der Kundenhalle fortsetzt. Der Neubau – die Sparkasse - protzt nicht, sondern integriert sich in ihren Ort.
Aufgabe: |
Zusammenführen der auf verschiedene Standorte verteilten Abteilungen im Neubau der Hauptstelle der Sparkasse Weißeritzkreis |
Standort: |
Freital |
Auftraggeber: |
Sparkasse Weißeritzkreis | Öffentlicher AG |
Planungs- und Bauzeit: |
1992 – 1996 |
Bruttogrundfläche: |
ca. 10.600 m2 |
Bruttorauminhalt: |
ca. 41.600 m3 |
Leistungen: |
Leistungsphasen 1-8, Generalplanung |
2. Bauabschnitt

Sanierung der Sparkassen-Hauptstelle
Unsere Leistungen umfassten das behutsame Erneuern von Dach und Fenstern, das Ausbessern der Fassade und den Neuanstrich. Die Geschosse wurden unter Beibehalten der vorhandenen Grundrissstruktur als Wohnungen, separate Büroeinheiten sowie Poststelle und Schulungsräume der Sparkasse hergerichtet.
Aufgabe: |
Sanierung des denkmalgeschützten Altbaus auf dem Grundstück der Sparkassen-Hauptstelle |
Standort: |
Freital |
Auftraggeber +öffentlich/privat |
Sparkasse Weißeritzkreis, Öffentlicher AG |
Planungs- und Bauzeit: |
1993 – 1997 |
Bruttogrundfläche: |
1.480 m2 |
Bruttorauminhalt: |
4.450 m3 |
Leistungen: |
Leistungsphasen 1-8, Generalplanung |
Fotos: © Jörg Schöner