
Dosenwerk Ball Packaging Europe, Belgrad
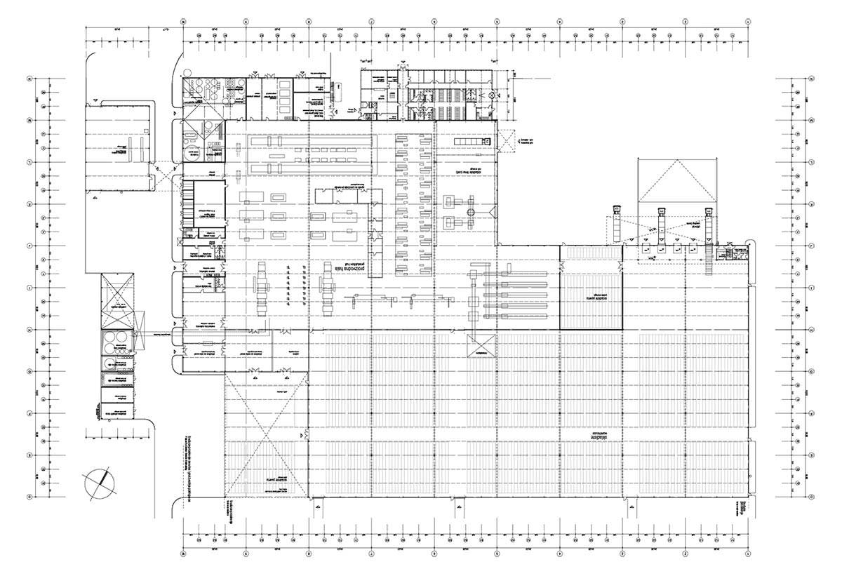
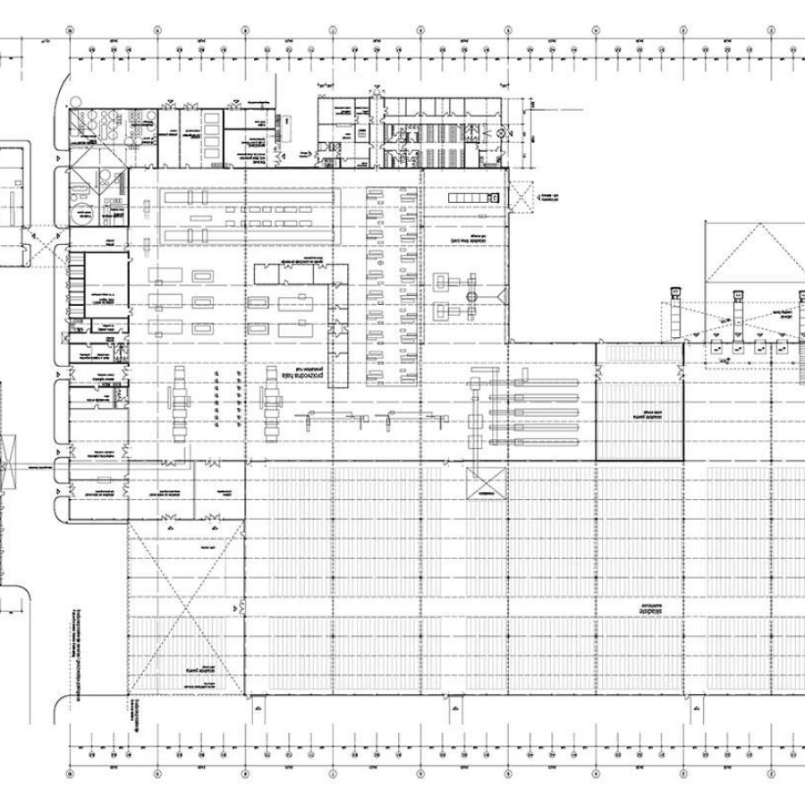
Die Planung umfasste nach Vorbild des Werkes Radomsko unter einem Dach 2 Produktionslinien für Alu-Dosen, Lagerflächen für Pappen und Paletten, Dosenlager, den Verladebereich, den Service-Trakt mit Meisterbüros, Werkstätten und Magazin, die Medien-Zentralen. Schrottpresse und das Verwaltungsgebäude mit Sozialräumen und Kantine stehen frei neben der Produktion.
Der Erwerb des Grundstücks, dessen Erschließung und das Herstellen von stimmenden Lageplänen waren bereits ein aufwändiges Unterfangen. Wir legten der Planung die deutschen (NRW) Standards für Baurecht und Brandschutz zu Grunde. Das Werk basiert auf dem Grundraster 16/24 m, es ist als Stahlkonstruktion mit Fassaden aus Sandwich- Elementen mit Alu-Trapezblech geplant. Das Werk ist komplett gesprinklert.
Die Abwicklung vor Ort wurde von einheimischen Kollegen betreut.
Aufgabe: |
Neubauplanung eines Dosenwerkes |
Standort: |
Belgrad / Serbien |
Auftraggeber: |
Ball Packaging Europe | Privater AG |
Planungs- und Bauzeit: |
2004 - 2005 |
Bruttogrundfläche: |
ca. 30.000 m2 |
Bruttorauminhalt: |
ca. 400.000 m3 |
Leistungen: |
Leistungsphasen 1-4, 6 |
Fotos: © plp