Schulbaukasten

16 Bundesländer gehen sehr unterschiedlich mit dem Thema Ganztagsschule um und setzen ihre Förderschwerpunkte unterschiedlich:

Ganztagsschulen können Sonderschulen, Grundschulen und Sekundarstufen I sein.
Ganztagsschulen können offen, teilweise gebunden oder vollständig gebunden sein.

  • Offen: Mittagessen + freiwillige Nachmittagsangebote, d.h. nur Betreuung
  • Vollständig gebunden: Gesamte Schule hat vor- und nachmittags Unterricht, Teilnahmepflicht. Essensversorgung wird angeboten.
  • Teilweise gebunden: Einige Jahrgänge haben nachmittags Unterricht mit Teilnahmepflicht. Essensversorgung wird angeboten.

Es gibt keine Größenangaben und keine Raumprogrammdefinitionen, nur Beschreibungen. Bedarf wird für folgenden Nutzungen gesehen:

  • Lernen
  • Betreuen und Fördern
  • Verpflegung und Gesundheit
  • Begegnung und Kommunikation

Die neuen Bundesländer haben auf Grund ihrer DDR-Vergangenheit teilweise einen sehr viel höheren Anteil an Ganztagesbetreuung (ca 50%) und entsprechenden Raumbestand, der i.d.R. sanierungsbedürftig ist.
Die Versorgung in den alten Bundesländern liegt i.d.R. unter 10 %.

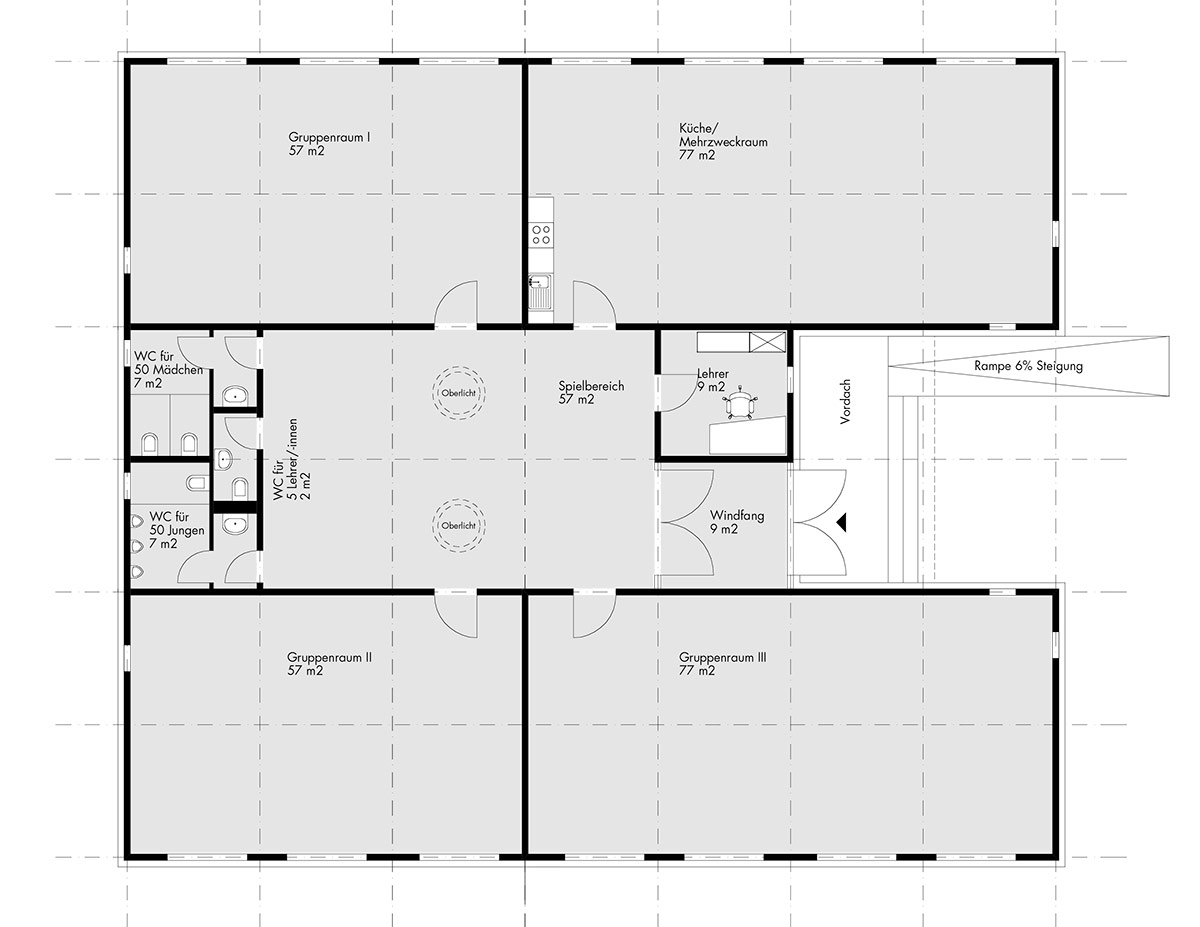
Wir bieten mit dem Schulbaukasten keine fertigen Typenbauten an, sondern definieren einzelne Raummodule, die im ersten Schritt vom Nutzer nach seinem Bedarf (Schultyp, Nutzung) ausgesucht und dann in einem 2. Schritt zu Gebäuden konfiguriert werden. Im ersten Schritt werden die Kosten über m2 Nutzfläche definiert, hier muss ein auskömmlicher Anteil für Verkehrsfläche / ggf. Zweigeschossigkeit enthalten sein.

Ausgangsmaß ist das Quadratraster 3.0/3.0 m (Innenmaß) - 3.0/6.0 m - 3.0/9.0 m  (= 3.15/3.15 m Achsmaß)
d.h. vereinfacht 9m2 und das Vielfache davon: 18 m2, 27 m2, 36 m2, 54 m2, 63 m2 ....

Die Module sind jeweils längs und quer andockbar.

Die Ausgangsfläche von 9m2 funktioniert als WC-Anlage für jeweils 50 Schüler, Treppe, Garderobe, angegliederte Sitz-, Lese-, Kuschelecke und als Lehrer-/Betreuerstation, Lager- und Nebenraum

zurück

© plp Architekten und Generalplaner   |   Impressum   Datenschutz