TZ Breisach, Neubau einer Lagerhalle

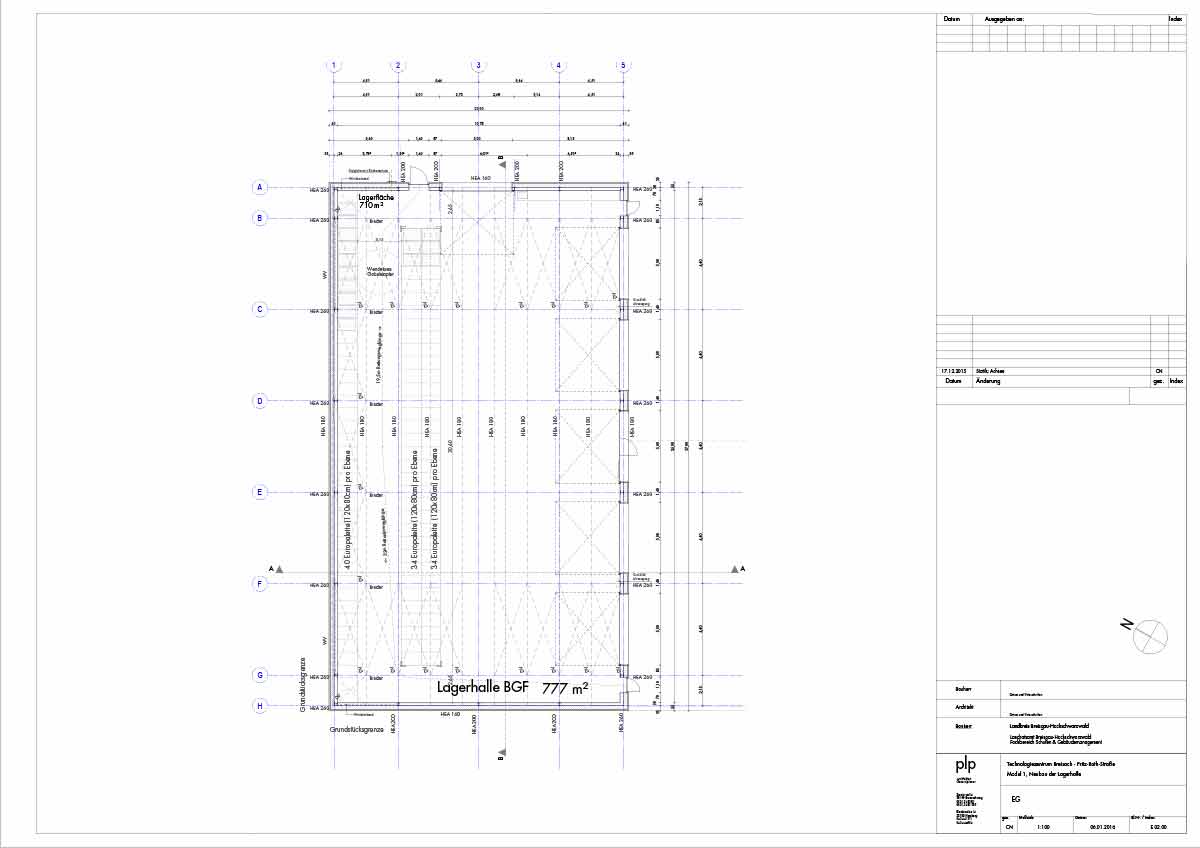
Der erste Bauabschnitt für die Neuordnung des Gesamtgrundstückes bestand im Neubau einer Lagerhalle für das Lagergut, das aus der Bestandshalle ausgelagert werden sollte sowie das Lagergut aus dem Grüngärtenweg für die neuen Pkw-Werkstätten. Die Halle, die ein geschlossener Kubus von immerhin 37 x 21 m bei einer Höhe von 8,50m ist, steht dem Wohngebiet abgewandt zur Freifläche hin auf der Nordwestecke des Grundstücks. Die Hallenfläche gliedert sich:

  • den rückwärtigen Teil mit drei Reihen Industrieregalen
  • den vorderen Teil mit Sektionaltoren, in dem Pkw temperiert und trocken für den Unterricht parken

Die Halle ist nur temperiert, nicht geheizt. Tageslicht fällt über die verglasten Sektionaltore ein. Sie ist eine Stahlkonstruktion mit Wetterschale aus 20cm Gasbetondielen, einem umlaufenden Stahlbetonsockel als Stoßschutz und einem Flachdach aus gedämmten Trapezblechen, Dämmung und Dachfolie. Mit der Halle wird das Gestaltungskonzept sichtbar: Die Gebäudehöhe ist identisch mit der der Lkw-Werkstatt und dem Theoriegebäude. Die sichtbare horizontale Gliederung der Gasbetondielen wird sich einheitlich an allen Gebäuden und Lärmschutzwänden abzeichnen.

Aufgabe:

Neubau einer Halle als Lagerfläche für alle Werkstätten auf dem Grundstück

Standort:

Breisach

Auftraggeber:

Landkreis Breisgau-Hochschwarzwald | Öffentlicher AG

Planungs- und Bauzeit:

2016

 

Bruttogrundfläche:

ca. 780 m2

Bruttorauminhalt:

ca. 7.230 m3

Leistungen

Leistungsphasen 1-9

 

Fotos: © plp

zurück

© plp Architekten und Generalplaner   |   Impressum   Datenschutz