Augenarztpraxis für Ambulantes Operieren

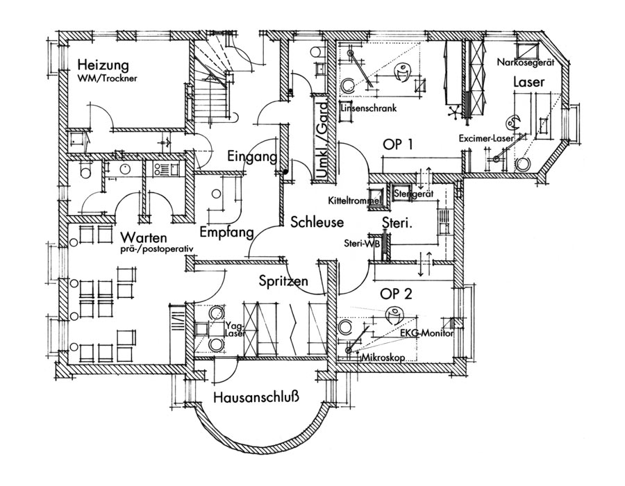
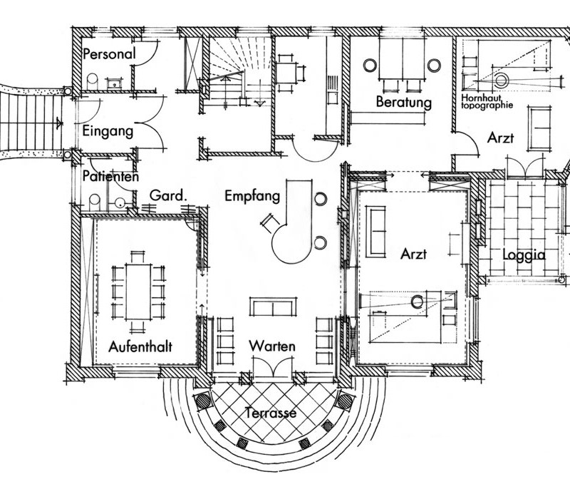
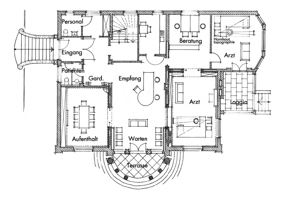
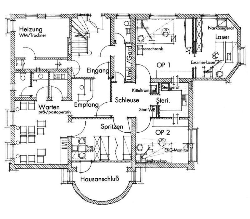
Zuerst setzten wir für den Bauherrn bei den Behörden durch, das Haus in diesen Geschossen gewerblich nutzen zu dürfen und stimmten mit dem Denkmalpfleger die Baumaßnahmen ab. Im EG  konnten Raumgefüge und Ausstattung erhalten werden und zu einer großzügigen Praxis mit Gründerzeit-Flair umgenutzt werden durch die Erneuerung der Installationen, die Raumverteilung, die Einrichtungsplanung und die Renovierung der Räume. Im Souterrain mussten wir statisch eingreifen und umbauen, um einen  funktionierenden OP- Bereich mit Schleuse, Steril-Raum, 2 OP-Räumen und Ärzte-Umkleide gesondert zum Wartebereich herzustellen. Das 1. OG wurde zum Wohnen hergerichtet. Die Arbeiten an der Außenhülle des Gebäudes beschränkten sich auf die Erneuerung der sanierungsbedürftigen Treppen, so dass der Charakter des Hauses unverändert erhalten geblieben ist.

Eckdaten
Aufgabe:

Die Villa an der Elbchaussee, gebaut 1911, sollte im EG und Souterrain für einen Augenarzt umgebaut werden: Im EG sollten Untersuchungsräume, Empfang und Warten entstehen, im Souterrain ein OP-Bereich für Ambulante Augenoperationen

Standort:

Hamburg

Auftraggeber:

Privater AG

 

Planungs- und Bauzeit:

1996 - 1998

Bruttogrundfläche:

EG + UG ca. 440 m2

Bruttorauminhalt:

EG + UG ca. 1.560 m3

Leistungen:

Leistungsphasen 2 - 8

 

Fotos: © plp

zurück

© plp Architekten und Generalplaner   |   Impressum   Datenschutz