Neubau des Hauptgebäudes der Brüder-Grimm-Schule

Die Schule liegt im Osten Hamburgs, in einer eher benachteiligten Wohngegend. Der Gebäudebestand der Schule stammt - wie oft in Hamburg - aus den 60er Jahren. Die sieben Klassenhäuser mit je vier Unterrichtsräumen wurden bereits saniert und werden unverändert genutzt. Der Neubau der Mensa wurde bereits 2014 fertiggestellt. Verwaltung, Fachräume, Sporthalle und Wohnung des Hausmeisters waren in z.T. abbruchreifen oder stark sanierungsbedürftigen Bauteilen untergebracht, einige Fachklassenpavillons waren bereits für die Nutzung gesperrt.

In einem ersten Bauabschnitt wurden in einem neuen Hauptgebäude die Verwaltung, die Fachklassenräume sowie Pausenhalle/Aula und die Hausmeisterwohnung untergebracht. Danach wurden die Fachklassen-Pavillons abgebrochen, um Platz zu schaffen für die neue Zweifeldhalle.
Nach deren Fertigstellung können die alte Einfeldhalle beseitigt und die Freiflächen endgültig hergestellt werden.

Aufgabe:

Neubau des Hauptgebäudes mit Aula, Verwaltung, Lehrerbereich und Fachklassen nach Abbruch des alten Hauptgebäudes aus den 60ern

Auftraggeber:

SBH, öffentlicher AG

Planungs- und Bauzeit:

2012-2018

 

Bruttogrundfläche:

ca. 3.400 m2

Bruttorauminhalt:

ca. 14.500 m3

Leistungen:

Leistungsphasen 1-9

 

Das Hauptgebäude wird 2018 fertiggestellt, die Zweifeldhalle bis 2020. Das neue Hauptgebäude ist so an der Straße platziert, dass es auf die Maße der Mensa Rücksicht nimmt und gemeinsam mit ihr einen Platz bildet, so dass künftige Schulveranstaltungen Mensa, Platz und Pausenhalle bespielen können.

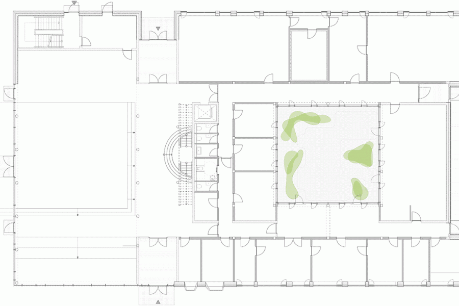
Mit dem Bauteam, bestehend aus der Schulleitung, einer Lehrergruppe und dem Hausmeister haben wir aus dem Flächenprogramm das Raumprogramm erarbeitet und Wünsche der Schule diskutiert und festgelegt. Ein Wunsch war, dass alle Schüler morgens beim Kommen den Eingang des Hauptgebäudes benutzen, dort die aktuellen Informationen erhalten und sich von dort auf dem Schulgelände verteilen. Der Grundriss ist deshalb einfach organisiert:
Das Gebäude wird von der Straße aus durch einen offenen, geradlinigen Verteilerbereich zwischen Haupteingang und Ausgang zum Pausenhof erschlossen. An diesem Verteiler liegt die Haupttreppe zu den Obergeschossen zwischen den beiden Fluren, die die Räume von Fachklassen und Verwaltung erschließen. Flure und Räume gruppieren sich um ein Atrium, so dass alle Flure mindestens partiell Tageslicht haben. Richtung Mensa öffnet sich der Verteiler zur zweigeschossigen Aula/Pausenhalle - die Schule atmet für Ankommende Weite und Großzügigkeit. In EG und OG liegen zur Straße hin Schulbüro und Verwaltung, zum Schulhof hin die Musikräume, der Kunst- und der Werkbereich. Das 2.OG beherbergt insgesamt die naturwissenschaftlichen Räume mit der gemeinsamen Sammlung.

Zwei aus Brandschutzgründen notwendige Treppen liegen jeweils an den Gebäude-Schmalseiten. Über die Treppe an der Pausenhalle wird auch die Hausmeisterwohnung im 2.OG erschlossen, die relativ separat mit Dachterrasse über der Pausenhalle liegt. Das Brandschutzkonzept ist auf der Grundlage der 400 m2-Nutzungseinheiten ausgelegt, dass die Flure vor den Verwaltungsräumen möbliert und genutzt werden können. Notwendige Flure gibt es nur in kleinen Teilbereichen. Planung und Ausführung unterlagen mit einem sehr knappen Budget extremem Kostendruck.

Fotos: © Heiner Leiska

zurück

© plp Architekten und Generalplaner   |   Impressum   Datenschutz