
Ausbildungsgebäude am Berufsförderungswerk Oberhausen
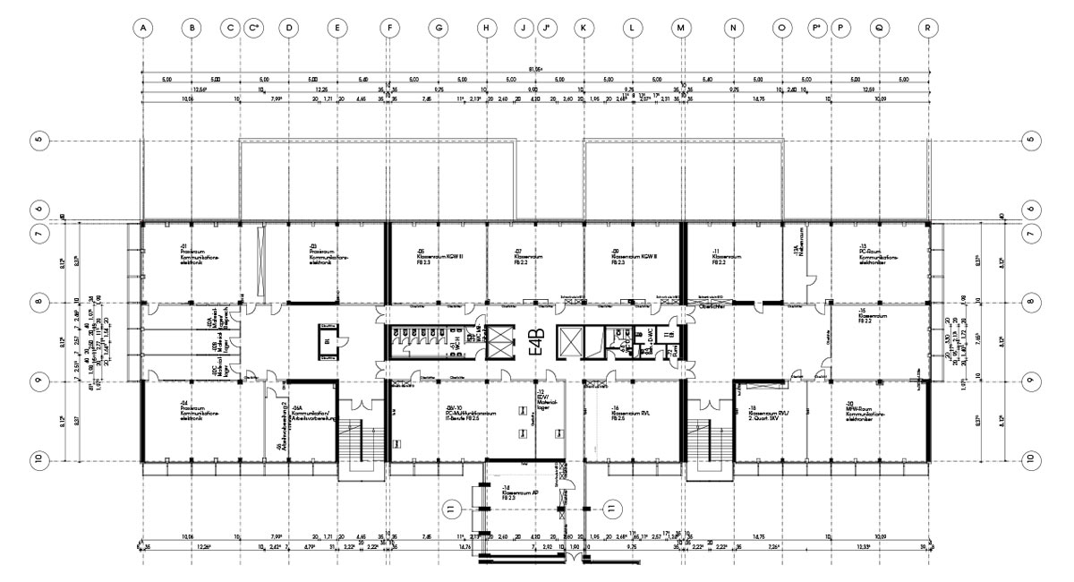
Die Gebäude-Enden wurden zu gegliederten Großräumen von je rund 600 m2 umgebaut, die dreibündigen Mittelbereiche blieben als Klassen- und Klausurräume erhalten. Gegenüber den Treppen erstreckt sich der Flur nun bis an die Fassade. Bis Mitte 2006 wurde ein Gebäudeende als Pilotprojekt umgebaut, in dem Erfahrungen mit dem neuen pädagogischen
Inhalten und der offenen Raumzone gesammelt werden (Schallschutz, Gliederung, Ausstattung). Diese Erfahrungen flossen dann in den Umbau der übrigen Etagen ein.
Die Bauarbeiten fanden im laufenden Betrieb statt.
Aufgabe: |
Sanierung und Umbau des Ausbildungsgebäudes für das neue pädagogische Konzept der Handlungsorientierten Ausbildung. Statt Klassenräumen „Lernlandschaften", in denen sich verschiedene Unterrichts- und Arbeitsplätze finden: Gruppen, Einzelarbeit, Besprechung. |
Standort: |
Oberhausen, Bebelstraße |
Auftraggeber: |
BFW Oberhausen | Öffentlicher AG |
Planungs- und Bauzeit: |
2005 - 2008 |
Bruttogrundfläche: |
ca. 13.000 m2 |
Bruttorauminhalt: |
ca. 60.000 m3 |
Leistungen: |
Leistungsphasen 1-8, Generalplanung |
Fotos: © plp