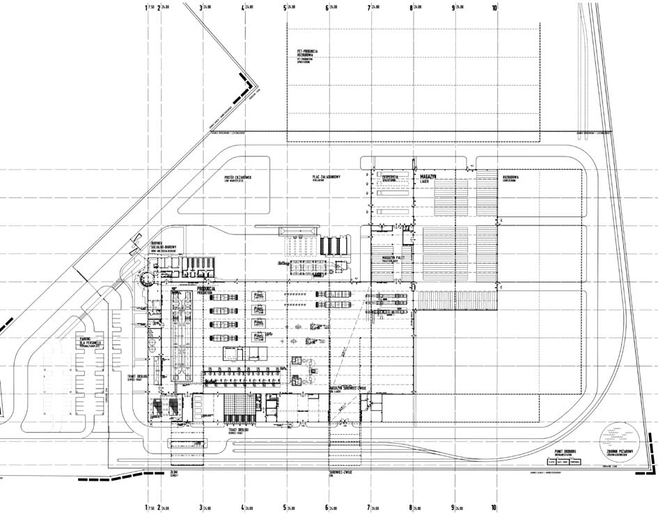
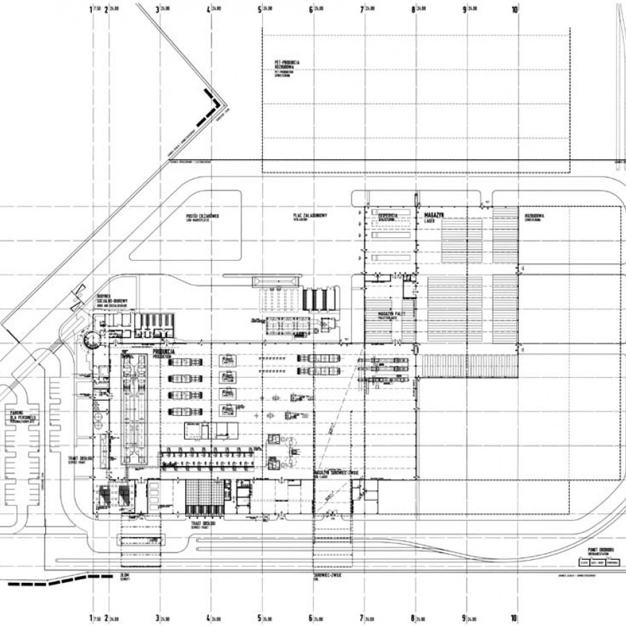
Dosenwerk Ball Packaging Europe, Radomsko

Mit dieser Planung entwickelten wir gemeinsam mit Bauherrn und Stahlbaubetrieb ein Konstruktionsraster, das die additive Errichtung und die Erweiterbarkeit mit geringen Störungen ermöglicht. Folgende Betriebskomponenten wurden dabei standardisiert:

  • Produktionshalle, Lagerhalle
  • Paletten- und Verladehalle
  • Besondere Betriebseinrichtungen.

Für  Servicetrakt, Büro- und Sozialtrakt wurden Raumprogramme entwickelt und standardisiert. Sie dienen als Baustein für vergleichbare Werke.

Aufgabe:

Neubau eines Getränkedosenwerkes. Lineare Erweiterbarkeit der Produktionslinien und Lagerkapazitäten, Gleisanschlussmöglichkeit, mögliche Anbindung an weitere Produktionsstätte für Kunststoff-Getränkeflaschen (PET).

Standort:

Radomsko / Polen

Auftraggeber:

Ball Packaging Europe | Privater AG

 

Planungs- und Bauzeit

1993 - 1994

Bruttogrundfläche:

29.000 m2

Bruttorauminhalt

205.000 m3

Leistungen:

Leistungsphasen 1-4, 6

 

Fotos: © plp

zurück

© plp Architekten und Generalplaner   |   Impressum   Datenschutz