Café Lykke in Elmshorn

Eine Neu-Gastronomin wollte ein besonderes Café gründen, in dem jeder - Allergiker wie Nicht-Allergiker - leckere Speisen bekommen sollte. Basis waren Waffeln aus verschiedenen Teigen mit unterschiedlichen Belägen/Füllungen.
Das Lokal war beim ersten Kontakt mit uns bereits angemietet, eine kleine Fläche, reizvoll im Zentrum Elmshorns nahe der Nikolai-Kirche. Nun sollte die Fläche sinnvoll gegliedert und eingerichtet werden. Die Kunden-WCs sollten unverändert bleiben.

Das Budget, das den kompletten Ausbau mit der gesamten Küchenausstattung umfasste, war eigentlich zu knapp kalkuliert. Zum 1. Juni begann die Mietzahlung.
Da in der Fläche vorher ein Imbiss gewesen war, brauchten wir keinen Bauantrag zu stellen.

 

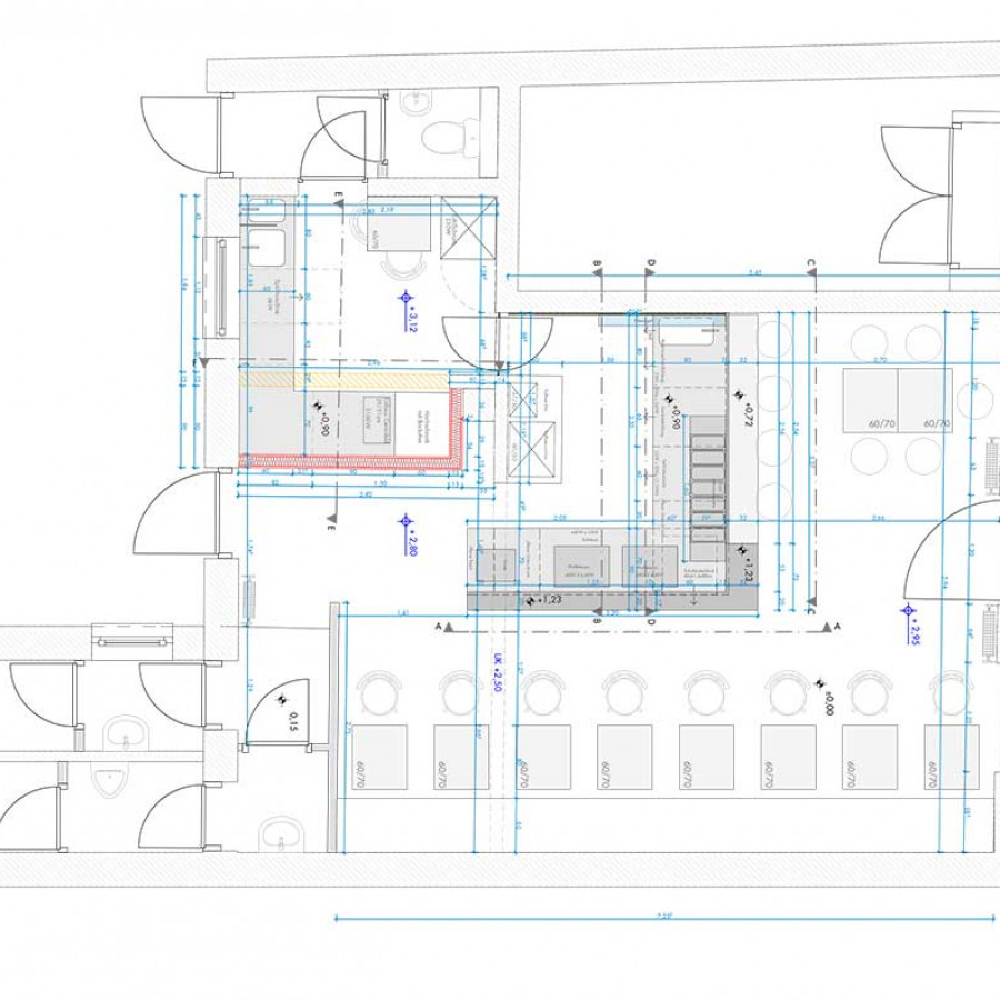
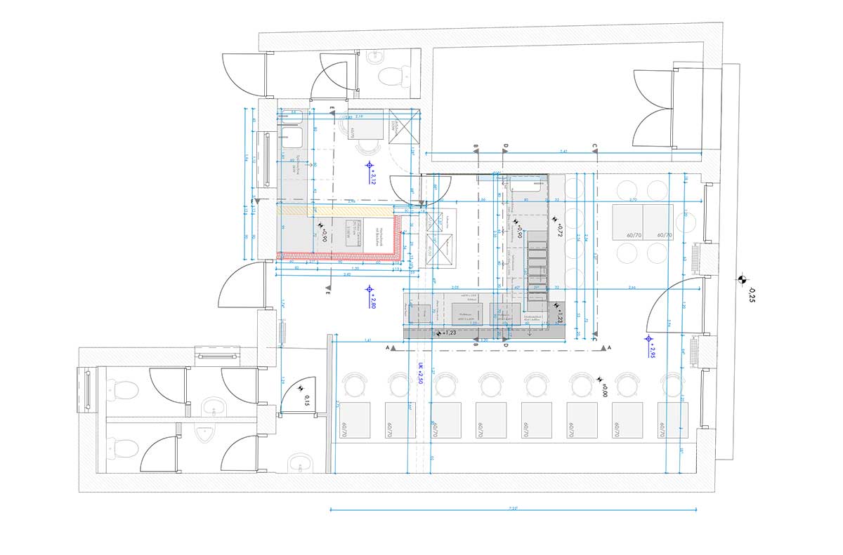
Zunächst mussten wir miteinander klären, welche Fläche für Lager, Vorbereitung und Küche mit allen Einbauten und Geräten mindestens gebraucht würde. Danach machten wir einen Einrichtungsplan mit der Nutzungsverteilung, um zu ermitteln, wie viele Gastpätze überhaupt untergebracht werden könnten. Nach diesem Konzept, das schnell akzeptiert war, wurde sofort mit dem Abbruch des Fußbodens, der Wand- und Deckenbeläge sowie dem Versetzen einer Wand begonnen werden.
Mit guten, mitdenkenden Firmen, besonders Tischler und Küchenfirma sowie Klempner und Elektriker haben wir in großer Geschwindigkeit das Projekt umgesetzt.

Gestalterisch wünschte sich die Bauherrin einen skandinavische Touch und Unverwechselbarkeit für ihr inhabergeführtes Café. Dazu gehörten helles Holz, heller Fußboden und der blaue Wandanstrich. Nach der gesamten Kücheneinrichtung, dem Tresen, den Regalen hinter dem Tresen und den Tischen, die alle entworfen und maßgefertigt wurden, blieb nicht mehr viel Geld übrig. Die gewünschte lange Sitzbank entlang der Wand war nicht mehr bezahlbar. Dafür haben wir das restliche Geld in die Leuchten investiert, die mit ihrer farbenfrohen Vielfalt den Raum unverwechselbar und fröhlich machen.
Die Eröffnung des Cafés war im Juli 2015, das gastronomische Konzept geht auf.
Die Sitzbank bauen wir demnächst.

Aufgabe:

Einbau eines Cafés in eine Ladenfläche

Standort:

Elmshorn

Auftraggeber:

Privater AG

Planungs- und Bauzeit:

2015

 

Bruttogrundfläche:

50 m2

Leistungen:

LPH 1-7

 

 

 

Fotos: © plp

zurück

© plp Architekten und Generalplaner   |   Impressum   Datenschutz