Lessinggymnasium

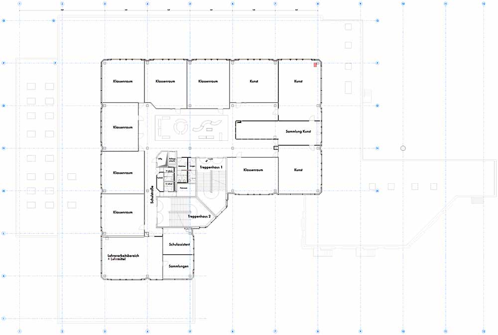
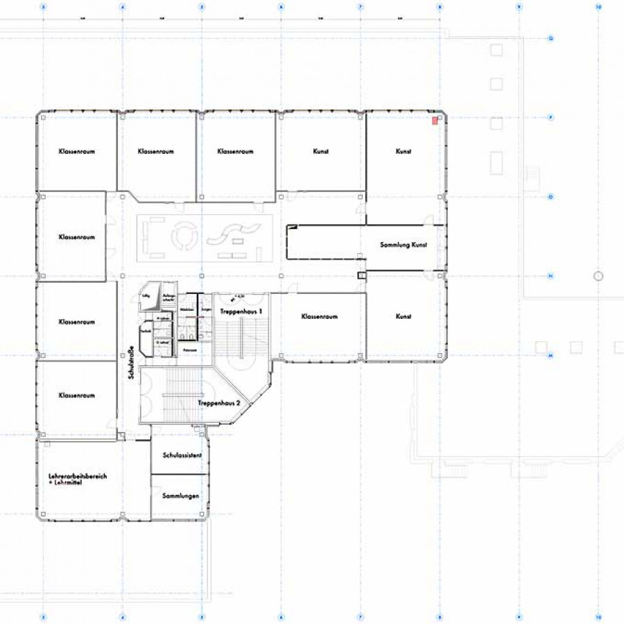
Das Lessinggymnasium im Norden von Braunschweig ist eine Schule aus den 70er Jahren mit allen Problemen der Gebäude dieser Zeit und 40 Jahren Abnutzung. Dies sollte nun in mehreren Bauabschnitten bei laufendem Schulbetrieb behoben werden. Außerdem sollte die Lern- und Verweilqualität der Räume verbessert werden. Die Schule wurde innerhalb dieser Maßnahmen zur Ganztagsschule ausgebaut. Die finanziellen Mittel waren äußerst knapp bemessen. Zunächst haben wir ein Fassaden- und Farbkonzept entwickelt, das von den damaligen Architekten freigegeben werden musste. Die Farben Orange und Grün sind die Leitfarben -Reminiszenz an die 70er. Nach dem Farbkonzept wurden zunächst alle WC-Anlagen erneuert. Im zweiten Bauabschnitt wurden die beiden Obergeschosse saniert: die Fassaden wurden ausgetauscht, alle Dachflächen gedämmt und erneuert.

Interne Umzüge gingen einher mit der Sanierung aller Räume und der Erneuerung der Haustechnik. Im 3. Bauabschnitt wurde das EG erneuert: Auch hier wurden die Fassaden ausgetauscht, die Mensa eingerichtet und die Eingangshalle als Aufenthaltszone hergerichtet. Wir haben gemeinsam mit der Schule das Innenraumkonzept beschlossen: Im EG eine Rückzugs- und individuelle Lernlandschaft mit den notwendigen Schließfächern als Gliederung. In den Obergeschossen Aufenthaltsflächen mit Sitzmöglichkeiten in der Mittelzone sowie eine Präsentationswand vor den Kunsträumen für Exponate. Die Küche ist als Vollküche mit Kochkessel und Kombidämpfern ausgestattet. Pro Tag werden bei ca. 135 Sitzplätzen rund 300 Essen aus- gegeben.

Aufgabe:

Sanierung des Gebäudes, Erneuerung Mensa und Küche, Innenraumkonzept

Standort:

Braunschweig

Auftraggeber:

Stadt Braunschweig | Öffentlicher AG

 

Planungs- und Bauzeit

2011 - 2015

Bruttogrundfläche:

ca. 8.600 m2

Bruttorauminhalt:

ca. 35.840 m3

Leistungen:

Leistungsphasen 3-8

 

Fotos: © ...

zurück

© plp Architekten und Generalplaner   |   Impressum   Datenschutz