
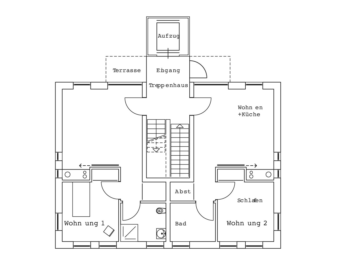
Betreutes Wohnen
Aus Gründen des Bestandsschutzes Erhalt von Keller, Außenwänden und Dachform, innen vollständige Entkernung der verrotteten Substanz. Neue, zentrale Anlage von Treppe und Aufzug. Einbau von insgesamt 7 Wohneinheiten, je 2 pro Geschoss plus einer Dachgeschosswohnung. Einpassen der Fassadengestaltung in die Gestaltungsregeln des Sanierungsgebietes. Verbessern der Wohnqualität durch Anbau von Balkonen an der Südseite und Gestaltung der Freiflächen.
Aufgabe: |
Sanierung des extrem baufälligen Hauses in Nachbarschaft eines Altenpflegeheimes und Ausbau zu barrierefreien Wohnungen. |
Standort: |
Braunschweig, Böcklerstraße |
Auftraggeber: |
Katholische Propstei Braunschweig- Pfarramt St. Ägidien |
Planungs- und Bauzeit: |
1998 - 2000 |
Bruttogrundfläche: |
ca. 703 m2 |
Bruttorauminhalt: |
ca. 2.010 m3 |
Leistungen: |
Leistungsphasen 1-9 |
Fotos: © plp